Home
About
Properties
Team
Clients
News
Back To Properties Main
Property
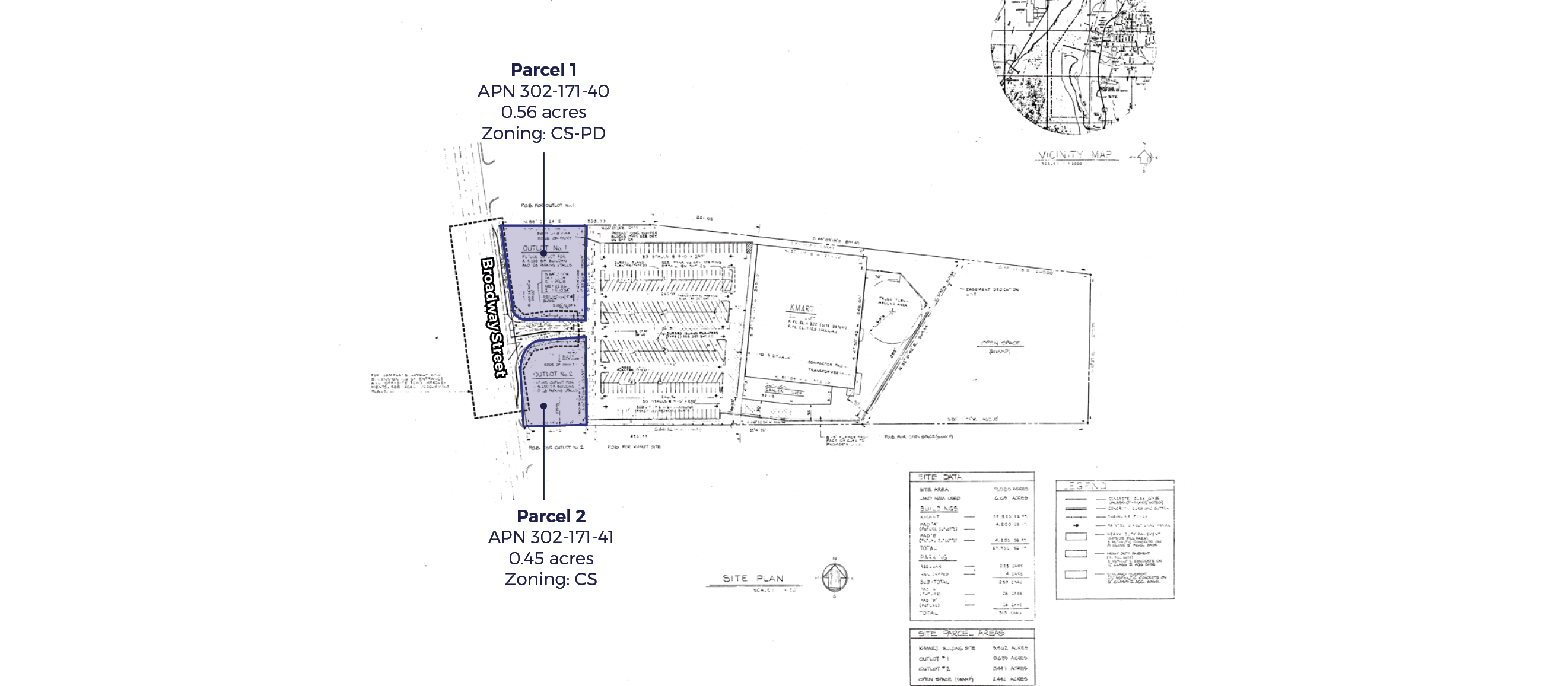
4325 BROADWAY STREET
Location
4325 Broadway Street Eureka
Brochure
Description
Available Pads on Highway 101
+/- 0.45-0.56 acres Available
Features
Retail/restaurant pads available
High visibility location
Ideal for retail and restaurant
In close vicinity to Bayshore Mall
Mike Moser
858.523.2089
mikemoser@riretail.com
Maya Grim
858.523.2094
mgrim@riretail.com